Vous recherchez une maison à vendre à Sarcelles avec jardin, à proximité immédiate des transports et offrant un fort potentiel d’aménagement ?
Située rue Pasteur à Sarcelles, à seulement 200 mètres de la gare Sarcelles–Saint-Brice (RER H), cette maison familiale permet de rejoindre Paris Gare du Nord en environ 20 minutes.
Implantée dans un environnement pavillonnaire calme et résidentiel, elle représente une belle opportunité pour une résidence principale ou un projet patrimonial.
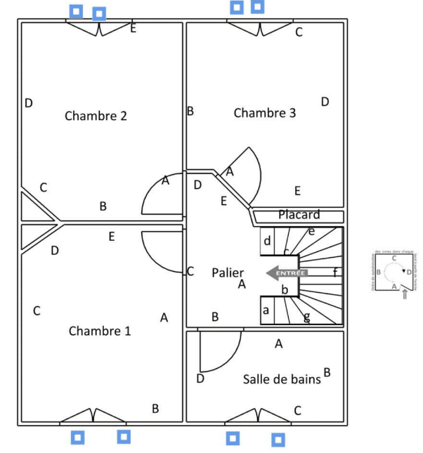
D’une surface habitable d’environ 112 m² (DPE G), cette maison répartie sur trois niveaux offre une distribution fonctionnelle :
Rez-de-chaussée :
Entrée
Double séjour lumineux
Cuisine indépendante
WC séparés
1er étage :
Trois chambres
Salle de bains
2e étage :
Quatrième chambre
WC
En complément :
Sous-sol total de 50 m²
Garage fermé de 17 m²
Terrain de 600 m²
Les volumes existants permettent d’envisager un réaménagement complet pour créer une maison contemporaine adaptée à vos besoins.
Des travaux importants sont à prévoir, offrant l’opportunité de repenser entièrement les espaces et d’optimiser la performance énergétique.
Le terrain de 600 m² ouvre également plusieurs perspectives :
Création d’un studio indépendant
Aménagement d’un espace professionnel
Création de stationnements supplémentaires
Extension ou réorganisation des extérieurs (sous réserve des autorisations d’urbanisme)
Les devis travaux peuvent être transmis sur demande, afin de vous permettre d’anticiper votre projet.
Cette maison bénéficie d’un accès rapide :
Gare RER H Sarcelles–Saint-Brice à 200 m
Accès rapide vers Paris Gare du Nord
Commodités, écoles et commerces à proximité
Un atout majeur pour les actifs travaillant à Paris tout en recherchant un cadre de vie plus résidentiel.
Ce bien s’adresse :
À une famille souhaitant acquérir une maison avec jardin proche de Paris et la personnaliser
À un acquéreur souhaitant valoriser un bien à fort potentiel dans un secteur bien desservi du Val-d’Oise
Selon votre projet, un accompagnement peut être proposé concernant :
La rénovation énergétique
La mobilisation d’aides financières
Le montage global du projet immobilier
Surface habitable : 112 m²
Sous-sol : 50 m²
Terrain : 600 m²
Garage : 17 m²
DPE : G
Prix : 312 500 € FAI
📞 Contactez-nous pour organiser une visite
📄 Devis travaux disponibles sur demande

